Casa di corte in vendita

Capannori, Via della Repubblica - Pieve San Paolo
€ 140.000
4 locali 4 locali
235 Mq 235 Mq
1 bagno 1 bagno

Casa di corte in vendita

Capannori, Via della Repubblica - Pieve San Paolo

Descrizione annuncio

CAPANNORI

PIEVE SAN PAOLO

Proponiamo in vendita un terratetto libero su tre lati molto accogliente e caratterizzato da ambienti luminosi, situato in una zona tranquilla e lontana dal caos cittadino, pur restando vicino a tutte le principali comodità.

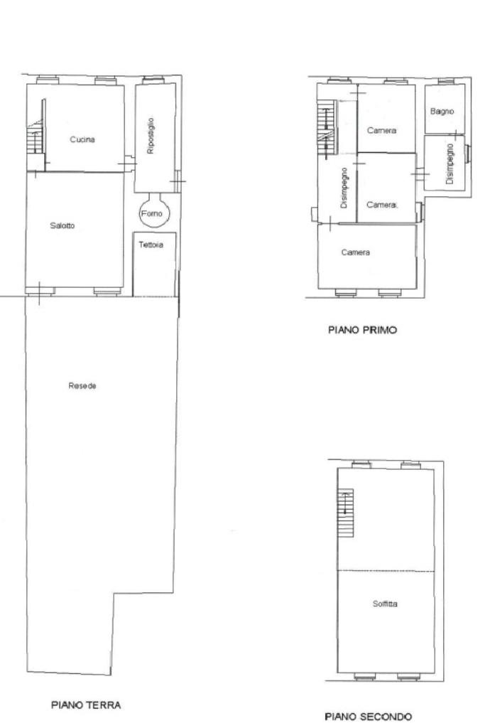
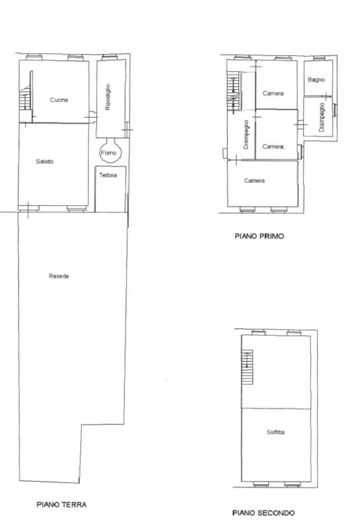
L'abitazione si sviluppa su più livelli: al piano terra troviamo un ampio soggiorno ideale per momenti di relax e convivialità e una cucina abitabile spaziosa e funzionale dotata di ripostiglio vivibile perfetto per uno spazio in più. Salendo al primo piano si accede alla zona notte composta da tre camere di generose dimensioni oltre a un bagno finestrato completo di doccia, mentre all'ultimo piano si sviluppa una soffitta praticabile, un ambiente versatile che può essere sfruttato come studio, locale hobby o spazio aggiuntivo per le necessità.

A completare la proprietà troviamo una resede molto funzionale e con posti auto disponibili.

Fissa un appuntamento per vedere questo immobile e chiama lo 0583547272 oppure contattaci al 3332041848.

Mostra tutto

Nelle vicinanze

Trasporto pubblico Trasporto pubblico
Trasporto pubblico
810 m
Tassignano-Capannori
Tassignano-Capannori
2,1 Km
Ricariche auto elettriche Ricariche auto elettriche
Autostrada Ciclabile Guidi
1,4 Km
Autostrada Ciclabile Osp. San Luca
1,6 Km
COOP Lucca| EnelX
1,7 Km
Grand Hotel Guinigi
1,9 Km
Autostrada Ciclabile Fermi
2,0 Km
Scuole Scuole
Scuola Elementare San Domenico Savio
210 m
Scuola dell'Infanzia Carraia
870 m
Istituto Tecnico Enrico Fermi
2,1 Km
Scuola Elementare Barsocchini
2,2 Km
Scuole
2,2 Km
Farmacia Farmacia
Farmacia
2,5 Km
Farmacia Comunale
2,7 Km
Raffo
2,7 Km
Ospedali Ospedali
Ospedale San Luca
1,8 Km
Distretto Socio Sanitario ASL2 San Vito
2,9 Km
Supermercati Supermercati
Coop
1,7 Km
Conad
1,9 Km
Lidl
2,5 Km
Supermercati
2,5 Km
Esselunga dell'Arancio
2,6 Km
Negozi Negozi
Negozi
2,1 Km
Officina Uomo
2,6 Km
De Simoni Archivio
2,9 Km
Outlet 273 Antica Officina
2,9 Km
Tosca Abbigliamento
2,9 Km
Bar Bar
Achille
1,5 Km
Kùku Disco
1,6 Km
Reloo
1,8 Km
Pracchia
2,7 Km
BabaYaga Bar
2,8 Km
Ristoranti Ristoranti
Ristorante Tomei
1,5 Km
Ristorante Spiedo D'oro
1,6 Km
Bonci #pizzarium
1,6 Km
Il Rustichetto S.A.S
1,6 Km
Mara Meo 2.0
2,0 Km
Mostra tutto

Caratteristiche

Rif.:
61152374
Piano:
3 di 3 (Piano su più livelli)
Posti auto:
2
Camere da letto:
3
Arredamento:
Parziale
Condizionamento:
Assente
Mostra tutto
Prezzo Prezzo
€ 140.000
Rata mutuo Rata mutuo
€ 660 / mese
Proponi il tuo prezzoProponi il tuo prezzo

Classe Energetica

G
G
G
G
G
G
G
G
G
EP globale non rinnovabile:
123.00 kW h/m² anno
EP globale rinnovabile:
123.10 kW h/m² anno
EP invernale del fabbricato:
EP estiva del fabbricato:
Anno di costruzione:
1850
Riscaldamento:
Autonomo
Tipo impianto:
A radiatori
Tipo alimentazione:
Metano

Ti interessa visionare l'immobile?

Fissa un appuntamento  Fissa un appuntamento

Richiedi informazioni

Clicca su Leggi per aprire l'informativa
* Questi campi sono obbligatori

Calcola il tuo mutuo

Semplice e senza impegno
Anticipo

( % )
Mutuo

( % )

pochi semplici passi

inserisci i tuoi dati
Questionario completato
Grazie per aver richiesto un appuntamento senza impegno con un nostro Consulente del Credito e Assicurativo.

Hai inserito correttamente tutti i dati necessari e a breve riceverai una e-mail con un link da convalidare per inviare i tuoi dati.
Affiliato
Tecnostudio Pieve D.I.
Via Cardinale Pacini, 5 55012 Capannori (LU)

Il nostro staff


  • Beatrice Cecchini
    Coordinatrice

  • Daniele Vettori
    Collaboratore

  • Alberto Calandra
    Affiliato
Via Cardinale Pacini, 5 55012 Capannori (LU)
Zona: Capannori
Mostra su mappa
Affiliato
Tecnostudio Pieve D.I.
Via Cardinale Pacini, 5 55012 Capannori (LU)

2026 Tecnocasa Franchising S.p.A. - P. IVA 08365160152 - Via Monte Bianco 60/A 20089 Rozzano (MI). Ogni agenzia ha un proprio titolare ed è autonoma. Privacy policy | Policy utilizzo | Cookie policy